VILLETTA UNIFAMILIARE CON GIARDINO E VISTA APERTA

Vendita
6526 Prosito

CHF 1'100'000

Descrizione (it)

Proponiamo in vendita una stupenda villetta bifamiliare di nuova edificazione a Lodrino-Prosito, composta da due unità abitative indipendenti, progettate per offrire comfort, funzionalità e privacy.

L'immobile è situato in una posizione strategica, ben servita dai trasporti pubblici e dai principali servizi come scuole, posta, banca, negozi e servizi medici, pur trovandosi in un contesto collinare tranquillo e residenziale.

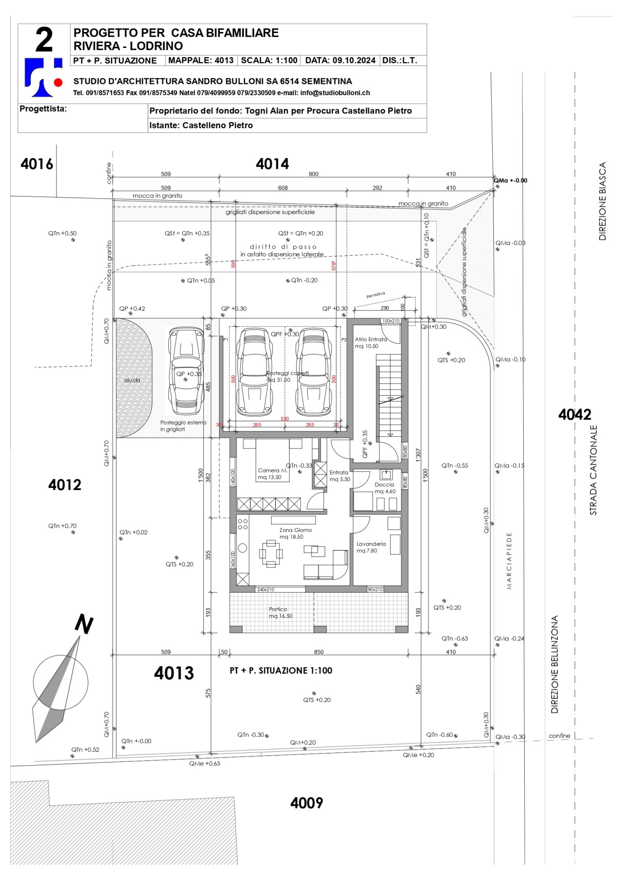
Al piano terra si trova un appartamento di 2.5 locali, composto da entrata che conduce alla zona giorno con cucina a vista. Dal soggiorno si accede direttamente al portico esterno, ideale per momenti di relax. Completano il piano una spaziosa camera matrimoniale, un bagno con doccia ed una comoda lavanderia.

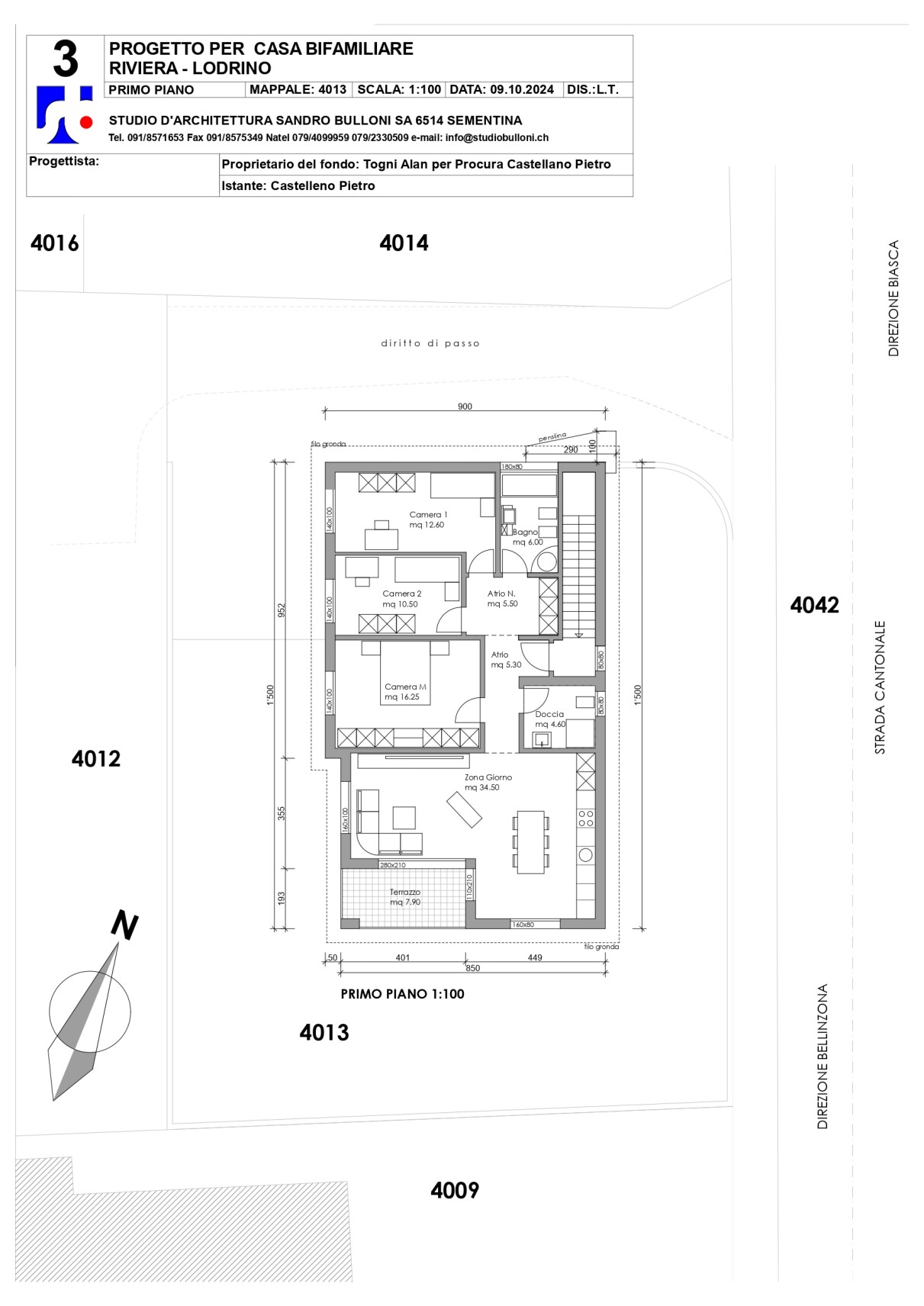
Al primo piano è situato un appartamento di 4.5 locali, caratterizzato da un'ampia zona giorno di circa 35 mq con moderna cucina a vista, dalla quale si accede al terrazzo, perfetto come spazio esterno aggiuntivo. Sullo stesso livello si trova un bagno di servizio finestrato con doccia. La zona notte comprende una camera matrimoniale, due camere singole di generose metrature ed un ampio bagno con doccia e vasca.

Completano la proprietà due posti auto coperti ed un posto auto scoperto, inclusi nel prezzo.

Le abitazioni saranno realizzate con finiture di alta qualità, riscaldamento tramite serpentine a pavimento, termopompa e serramenti con triplo vetro.
L'inizio dei lavori è previsto per metà 2026. Nella fase attuale è ancora possibile personalizzare tutte le finiture secondo i propri gusti ed esigenze.

Questa casa bifamiliare rappresenta una soluzione abitativa moderna e ben studiata, ideale per chi desidera vivere in un contesto tranquillo, con ambienti luminosi, spazi esterni privati ed una chiara separazione tra zona giorno e zona notte.

Beschreibung (de)

Wir bieten ein Neubau 4,5-Zimmer-Einfamilienhaus mit großem Garten und freiem Blick in Lodrino-Prosito zum Verkauf an.

Das Projekt sieht den Bau von drei Einfamilienhäusern vor, die sich in strategischer Lage befinden, mit Anbindung an die öffentlichen Verkehrsmittel und die wichtigsten Dienstleistungen wie Pflichtschulen, Post, Bank, Geschäfte und ärztliche Versorgung, während sie gleichzeitig in einer ruhigen Wohngegend in Hanglage liegen.

Jede Villa ist auf drei Etagen verteilt und wie folgt aufgeteilt:

Erdgeschoss: Im Eingangsbereich befindet sich ein Foyer mit Einbauschränken, ein Badezimmer mit Fenster und Dusche sowie ein großer, heller Wohnbereich mit einer modernen, winkelförmigen, offenen Küche, die mit den neuesten Geräten ausgestattet ist. Der Wohnbereich zeichnet sich durch große Schiebefenster aus, die den Zugang zur Veranda und dem 120 qm großen Garten ermöglichen.

Obergeschoss: Der Schlafbereich umfasst ein Doppelschlafzimmer, zwei großzügige Einzelschlafzimmer und ein Bad mit Dusche.

Untergeschoss: Hier befinden sich ein Technikraum, ein Waschraum und zwei Hobbyräume.

Die Zufahrt erfolgt auf Straßenniveau, wo sich ein Carport mit einem überdachten Stellplatz, ein nicht überdachter Stellplatz und ein Geräteraum für jede Einheit befinden.

Die Villen werden nach dem neuesten Stand der Technik gebaut, mit hochwertigen Ausstattungen wie PVC-Fenstern und -Türen, schadstoffarmer Dreifachverglasung, verstellbaren Aluminiumlamellen und einer Heizung mit Thermopumpe und Wärmeverteilung über Fußbodenspiralen.

Diese freistehenden Häuser stellen eine perfekte Kombination aus modernem Komfort, hochwertiger Bauweise und einer privilegierten Lage dar, ideal für alle, die ein ruhiges Zuhause suchen, aber dennoch gut an die wichtigsten Dienstleistungen angebunden sind.

Dettagli Proprietà
  • ID Interno: 17319
  • Azione: Vendita
  • Prezzo: CHF 1'100'000
  • Locali: 7.0
  • Camere: 5
  • Bagni: 3
  • Superficie comm.: 210.00 m2
  • Costruzione: 2026
Dotazioni
  • Deposito biciclette
  • Deposito moto
  • Lavanderia in casa
Mappa