UFFICIO A POCHI PASSI DAL CENTRO DI CHIASSO

Vendita
6830 Chiasso

CHF 185'000

Descrizione (it)

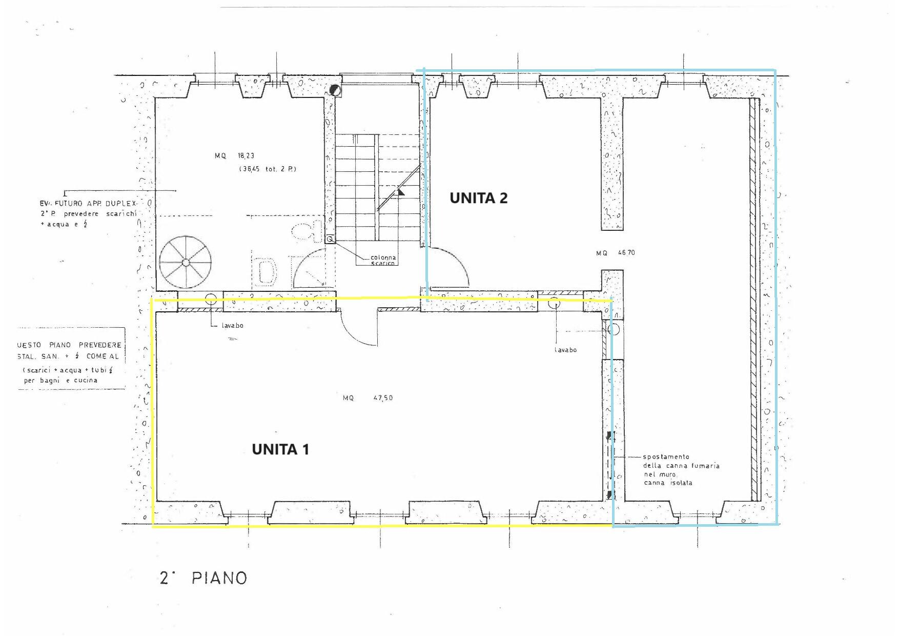
Proponiamo in vendita in posizione centrale e ben servita, un'unità da ristrutturare situata al secondo ed ultimo piano (senza ascensore) di uno stabile composto da sole 7 unità.

L'immobile dispone di un ampio locale di circa 48 m², attualmente adibito ad ufficio può essere facilmente trasformato, tramite un intervento di ristrutturazione ed il cambio di destinazione d'uso, in un trilocale residenziale funzionale e moderno. Progetto di ristrutturazione già approvato in comune.

A disposizione locale lavanderia in comune.

Soluzione ideale anche come investimento, in previsione della realizzazione del nuovo CPT del settore tessile che porterà un interessante flusso di studenti nella città.

È inoltre possibile unire questa unità (nr. 1) con quella adiacente (nr. 2), realizzando così un ampio appartamento.

Prezzo unità 1: CHF 185'000.-
Prezzo unità 2: CHF 190'000.-

Dettagli Proprietà
  • ID Interno: 16812
  • Azione: Vendita
  • Prezzo: CHF 185'000
  • Locali: 2.0
  • Superficie comm.: 55.89 m2
Mappa